Providence, RI

Community Musicworks

To design a meaningful landscape to further this non-profit's mission, to build community by offering a cohesive educational and performance experience to residents of this community and city, was a challenge. Founded on a commitment to social justice, the mission of this non-profit is to is create cohesive urban community through music education transforming the lives of children, families and musicians by offering music for the last 28 years.

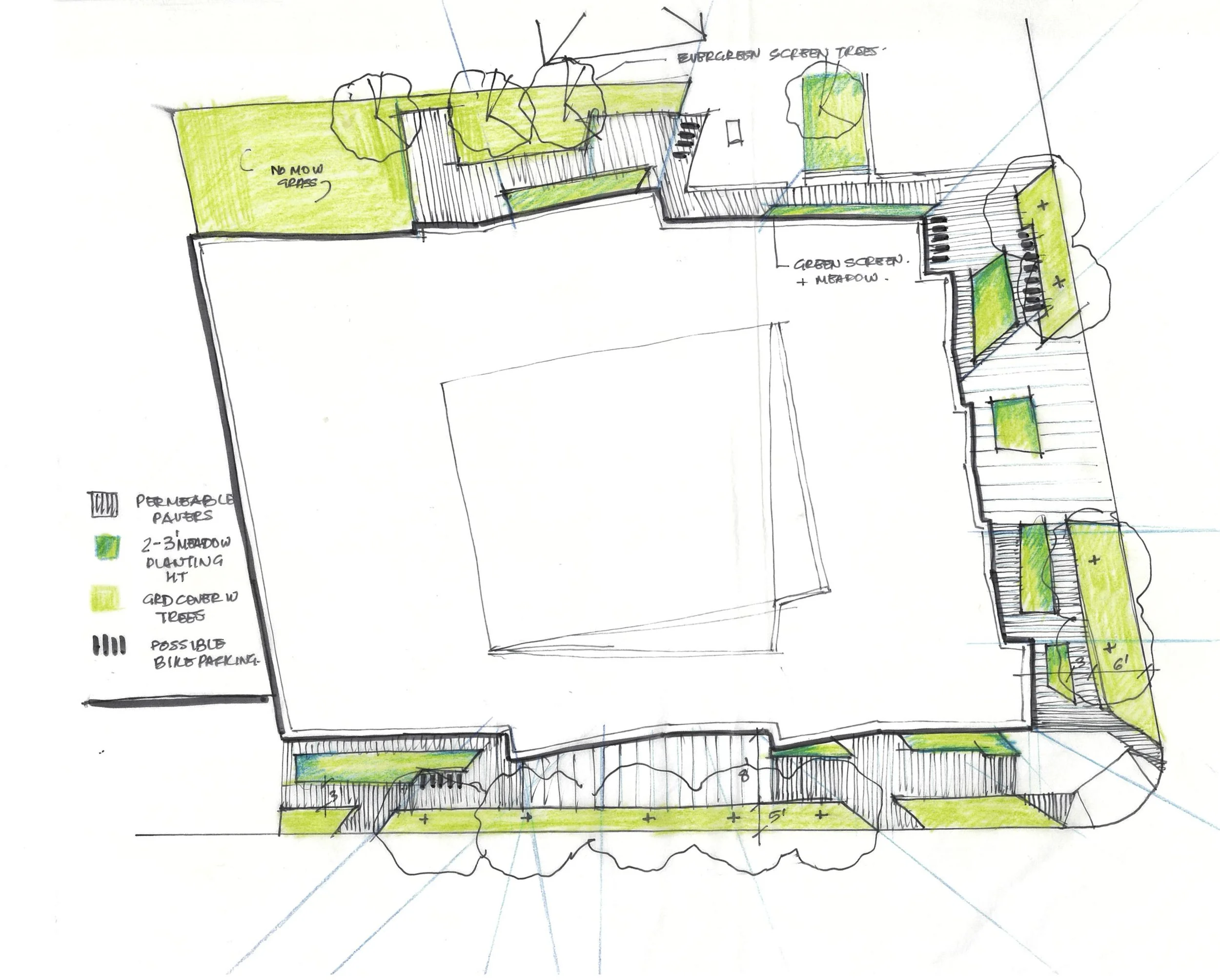
 Our goal was to create a landscape where this underserved community could experience first-hand, that significant, measurable improvements to their environment can happen even on a small site and encourage them to be stewards for the environment and climate resilience. The landscape design form, choice of materials, and systems are intertwined with the buildings design to become one cohesive experience from the inside out. The roof captures rain water through concealed downspouts into an underground concrete storage tank and reused for irrigation. Permeable pavers allow stormwater recharge on the site and sidewalk. The entire southern portion of the site is a series of rain gardens and permeable paving, that help infiltrate, and slow down the stormwater, create storage capacity and reduce the amount of water discharged off site into Narragansett Bay.

 Native plantings typical of streambed ecology are used that could tolerate periods of water inundation with minimal maintenance. Some plant species are also pollinators encouraging habitat creation and bring seasonal color and include plants like the shadbush, fringe Tree, viburnums, bee balm, ferns, joe Pye weed, asters, waldsteinia and Penstemon to name a few.

The toxic soils excavated for the building foundations could not be backfilled and created an opportunity to build a “new site ecology” starting with soils. Conversation city arborist confirmed street trees in Providence were short lived at about 30 years. We worked with a nationally well-known soil scientist to develop soil profiles for the sidewalk, and Bio retention soils. Their proprietary Sand based Structural soils” allow tree roots to grow freely under the sidewalks, act as supportive base for hardscapes and are significantly less expensive than structural soils and also extend life of the street trees to a 100 years.

Where impervious concrete sidewalks once lived, only a 5' concrete sidewalk remains with permeable paving and street trees now grow in expanded tree pits that soften the public right of way and create continuity in the pedestrian experience.

While the design ideas were welcomed by the client and architect there was no budget for this landscape vision. We quickly established a team of subject matter experts other than the Geotech and Civil engineers already on the team . We brought in a water recycling expert a soil scientist, to put numbers and science behind this vision.

The parklet design, with water recycling and sand based soils was generously funded by Southeast New England Program (SNEP) Watershed Implementation Grants Program. We led the effort to introduce the grant program and help co-write the grant with the client and architect team to bring this landscape to construction.

The Water retention parklet, other than managing water on site also provides an immersive experience in nature that welcomes the surrounding underserved community to enjoy the outdoor space for musical performances, and create continuity to their everyday pedestrian experience of green space with the nearby Dexter Field Park. The landscape elements bring the interior and exterior spaces together with the choice of materials, the radiating forms and landscape lighting, furnishings, lush and varied native plants that delight and change with the seasons welcoming visitors to linger, and learn.

COLLABORATORS

3SIXØ Architecture

Pine and Swallow Environmental Consultants

Aqueous Consultants

Water Recycling Systems SNEP

PHOTOGRAPHY

Laurel leaf Studios

Lisa Perez Studio

CLIENT

Community Music Works